Menu
img
img
img
img
  • available
  • Jual
  • 11 bulan yang lalu

DIJUAL RUMAH BARU LOKASI RIAU UJUNG-PEKANBARU

Rp. 675.000.000

Deskripsi:

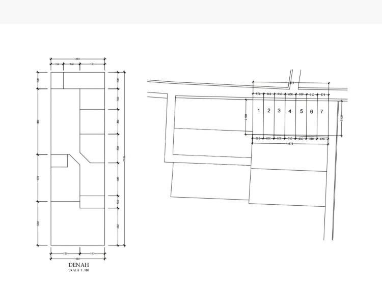
YU01 

TOTAL 7 UNIT

img

2 Kamar Mandi

img

3 Kamar Tidur

Detail Property:

  • Luas Tanah: 6,5M x 21M
  • Luas Bangunan: 6,5M x 15M
  • Air: SUMUR BOR
  • Listrik: 2200 VA
  • Hadap:
  • Kondisi: BARU
  • Sertifikat: SHM

Fasilitas

Dekat Rumah Sakit
Dekat Tempat Ibadah
Sekolah
Universitas
Mall
Carpot

Tipe DP

Jumlah Pinjaman Cicilan per Bulan Periode Bunga Fix